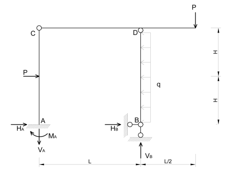
Nosaki balsta reakcijas un attēlā dotajam rāmim!
Dots:
\(q\) = 7 \(kN/m\)
\(P\) = 10 \(kN\)
\(H\) = 7 \(m\)
\(L\) = 10 \(m\)
= 12,5 \(k\)\(N\)
= 49 \(kN\)
= 39 \(kN\)
Dots:
\(q\) = 7 \(kN/m\)
\(P\) = 10 \(kN\)
\(H\) = 7 \(m\)
\(L\) = 10 \(m\)
= 12,5 \(k\)\(N\)
= 49 \(kN\)
= 39 \(kN\)

Rezultātus noapaļo līdz 1 ciparam aiz komata!
= \(kN\)
= \(kNm\)
Lai iesniegtu atbildi un redzētu rezultātus, Tev nepieciešams autorizēties. Lūdzu, ielogojies savā profilā vai reģistrējies portālā!